
Westfield Resort
The resort’s architecture seamlessly integrates with the surrounding landscape, featuring a contemporary design that harmonizes with natural elements. The exterior boasts clean lines, expansive glass walls, and sleek, minimalist structures that allow for unobstructed views of the lush greenery and stunning vistas.
Westfield Resort
PROJECT
LOCATION
AREA
YEAR
Description
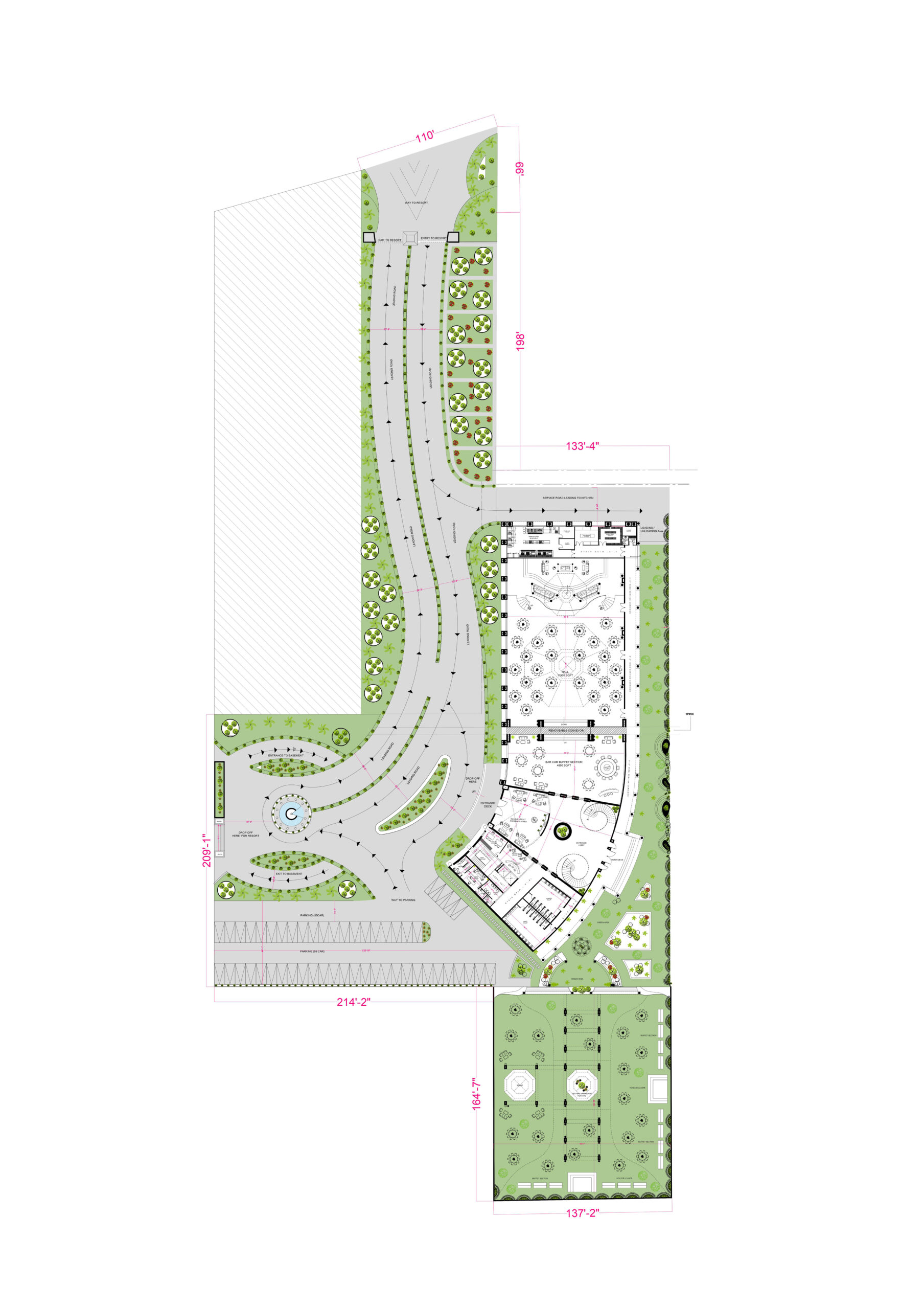
At the heart of the design lies a large glass pavilion, creating a luminous central space that serves as the visual and functional centerpiece of the resort. This pavilion not only connects various wings but also introduces a contemporary touch that balances the traditional neoclassical vocabulary. The main entrance, framed by towering columns, welcomes guests into a world where luxury meets timeless architectural elegance.
The Outcome
The façade has been carefully crafted to maintain a neutral exterior palette, emphasizing subtlety and refinement rather than ostentation. Every element, from the intricate moldings to the grand classical symmetry, has been considered to convey royal grandeur and exclusivity. The resort also draws inspiration from Victorian-style mansions, incorporating architectural flourishes that evoke a sense of heritage and sophistication.
This project showcases HBS’s commitment to creating immersive environments where design is not just about aesthetics but about crafting experiences. Every corner of the resort—from its majestic façade to the luminous glass pavilion—reflects meticulous attention to detail, offering an elegant and inviting retreat for its discerning guests.






